Bundoran Community Centre main foyer Pic: Michael McHugh
Now that the Bundoran Community Centre on Bundoran’s Main Street has moved temporarily to the old council offices beside the town’s library, due to some exciting new upgrades at the existing location, including a lift, it is the perfect time to reflect how the centre has progressed since it opened in 2016 and what plans are in store for the future.
Manager Danielle Carty is the pleasant face that greets many of the users that frequent or use the Bundoran Community Centre on a daily basis.
She explained that things are going from strength to strength.
“The good thing is that the place has been very busy. Our records for 32,000 people passed through our doors last year. That is a mixture of things.
“We host and run a lot of classes here as well as private bookings and services such as Citizens Information, FoodCloud, and regional employment services.”
Daily life
“A typical day here would see an average of 100 people coming through the doors for us.
“At the moment, it is just myself and Teresa (O’Neill), who are managing the whole lot with the aid of a few volunteers.
“We are very short staffed. We have applied for more funding for four staff but we have been told that the pot of money has actually got smaller since we applied and we will only get one.
“This funding for additional staff would enable us to open daily 9am to 9pm, with more hours on the weekends.
“Currently we are open 9-9 on Wednesdays and Thursdays and every other day until 5pm.”

ABOVE: Danielle and Teresa casting their eyes on the new plans
Danielle pointed out that the the facilities and services that are now available to the the community have grown exponentially since 2016, when the centre first opened.
The centre was purchased by an active volunteer committee in 2016 thanks largely to money that had been set aside for a purchase by Bundoran Town Council, before it was itself disbanded like others throughout the country in February of 2015.
Danielle explained that in its early days, it was operated by volunteers as well as CE and Tús staff and then they were offered CSP (Community Services Programme) in 2020 which allowed them to recruit a full time manager and a full time administrator.
New developments
In essence, despite its presence in the middle of the town, the centre was deemed too small.
Danelle explained : “When I came in March of 2022, the first thing I noticed was that we were near full to capacity and the demand was rapidly increasing.
“And as a community centre we wanted to meet those demands. As luck would have it a fund was announced through the department, we applied and were successful in that application.
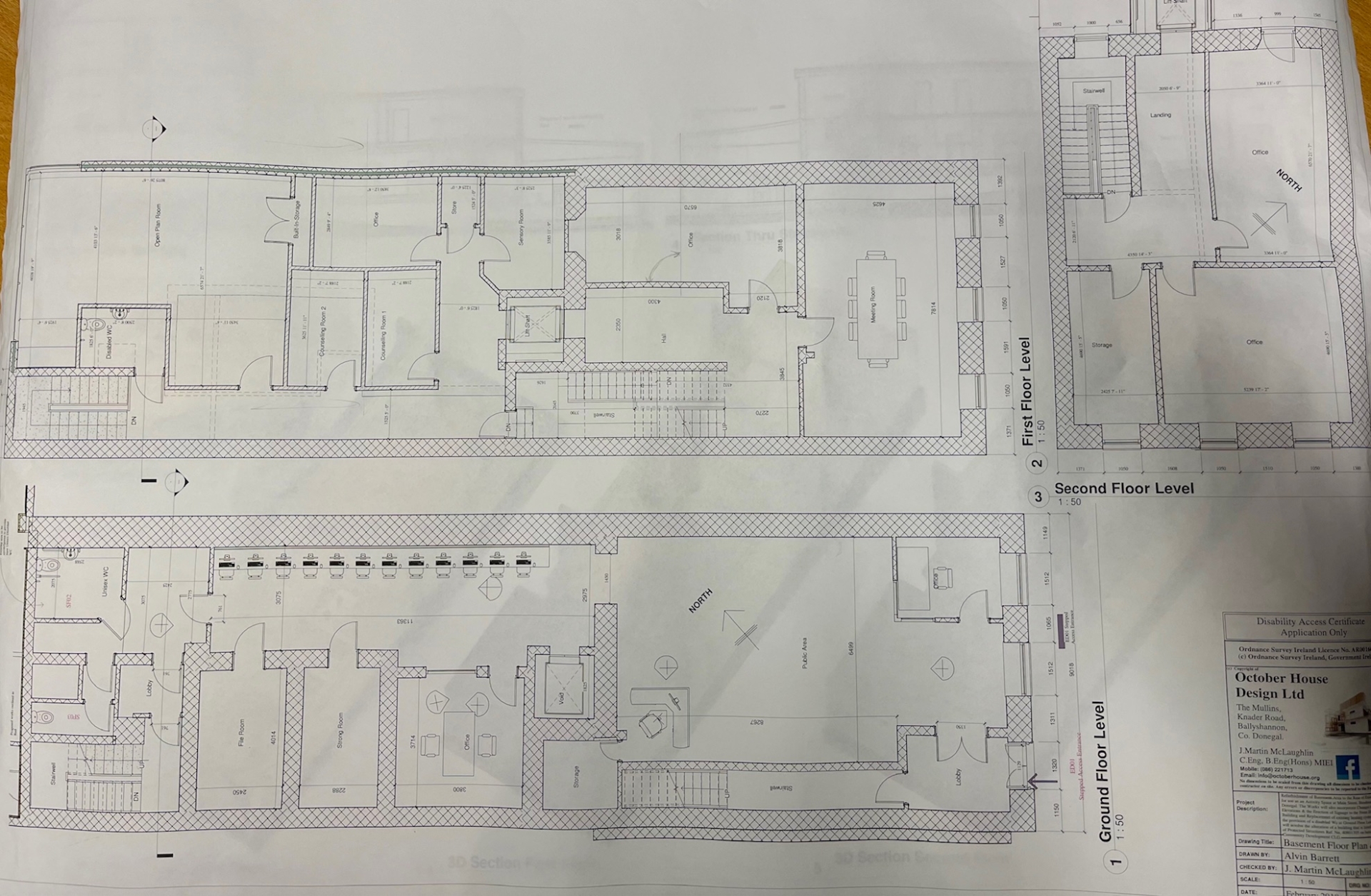
“That funding will facilitate an extension to one of the floors and a lift installed that will service all floors of the building .”
At present the building houses three floors and a basement where the Rougey suite is located and where they host their larger venues including music events, essentially its main function room. It seats about 85 people, but can be more if used for something else. It is also their most flexible room and their “highest in demand” room.
-1707396934923.jpg)
ABOVE: The plans for the development works at the Bundoran Community Centre
“What we had struggled with since the very beginning was accessibility. Up to now the only accessible area in the building to all users was the front foyer and the Rougey suite.”
“Anybody with accessibility issues was constrained in what they could do here.
“The enhanced building will be accessible to everyone once the new lift has been installed. And we can now utilise the rooms and space to its full potential.
“This funding will also give us two new counselling rooms, a function room similar to the Rougey suite, we will also have a storage room and a sensory room as well as an extra office.”
The centre found, after Covid, that some people in the 50 years plus category were struggling with social isolation and from this. other initiatives such as Chat and a Cuppa, which was recently nominated for a DLDC Community Recognition award, chair yoga, chair excercise and art came to fruition.
The centre also acts as a youth hangout, and there is the parent and toddler group, so the centre is always in demand in one shape or another.
“The new works will allow us to extend what we do and run a number of things simultaneously together, something that we really have not been able to do up to now.
-1707396977670.jpg)
ABOVE: Where the new lift will be located from the benefit of the first floor Photos: Michael McHUGH
Others services at the centre that will continue to be enhanced will include Counselling services and youth facilities.
Danielle concluded:
“The growth since Covid has been phenomenal and we are finally delighted to be able to provide all the much needed services and facilities for our community.
“This could not be done without all the help and support that we receive from our community, the local businesses, our committee and Board.
“With that in mind, this new build requires match funding and funds to kit out the new sensory room, so we will be embarking on a number of fundraising initiatives to add to our most important annual fund raiser at present, the Bundoran Bay Swim, which takes place this year on June 16.”
Subscribe or register today to discover more from DonegalLive.ie
Buy the e-paper of the Donegal Democrat, Donegal People's Press, Donegal Post and Inish Times here for instant access to Donegal's premier news titles.
Keep up with the latest news from Donegal with our daily newsletter featuring the most important stories of the day delivered to your inbox every evening at 5pm.